Navigation überspringenSitemap anzeigen
ID Bauprojektmanagement GmbH - Logo

Haus 3

 Haus 3
 Haus 3
 Haus 3
 Haus 3
Lageplan
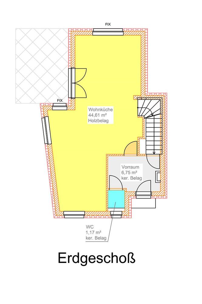
Erdgeschoss
Obergeschoss
Dachstudio
VERKAUFT

Projektbeschreibung

Haus 3: 136,50 m2
Grundstück: 301,89 m2

--

Ihr Ansprechpartner
Ing. Thomas Hackstock, Projektleiter, +43 699 10 37 9399
Ing. Raphael Wöber, +43 699 19 91 2705
Telefon: +43 1 943 64 20 14
E-Mail:

ID Bauprojektmanagement GmbH
Moselgasse 34/6/8, 1100 Wien

Symbolfoto. Irrtümer und Druckfehler vorbehalten.

--

Leistungsbeschreibung (PDF) Grundrisse Verkaufspläne (PDF) Lageplan (PDF)